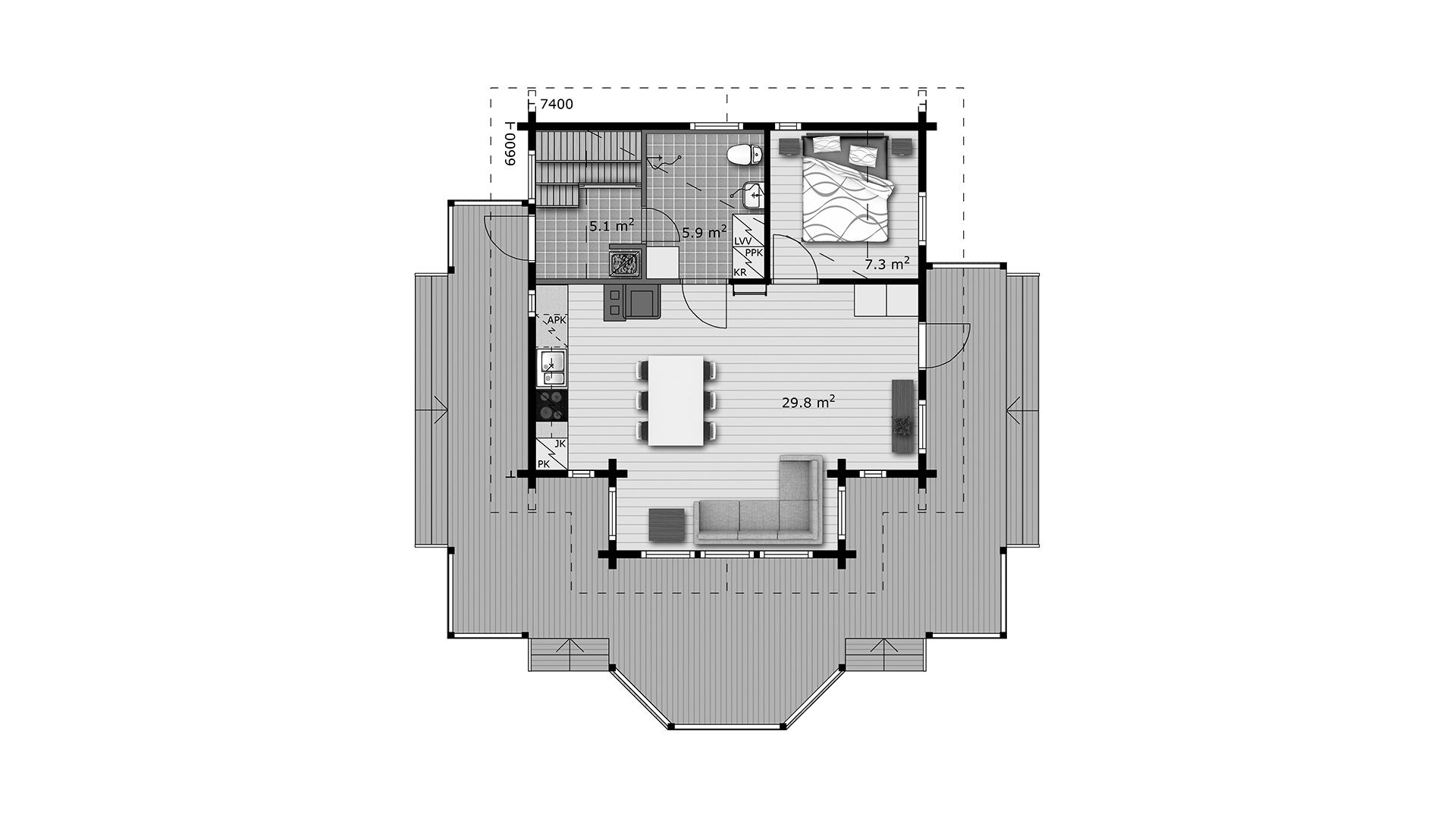
Пурну 56

Количество спален - 1

Кол. сан. узлов - 1
Сауна - есть
Количество этажей - 1 + чердак

Деревянный дом Purnu - это дом с террасами большими окнами, которые пропускают естественный свет во внутренние помещения. В доме достаточно места как для жилых помещений, так и для сауны.

ЕСЛИ У ВАС ЕСТЬ ВОПРОСЫ, ВЫ МОЖЕТЕ ПОЗВОНИТЬ НАМ ПО ТЕЛ. +7 (812) 363-16-70
ИЛИ ЗАПОЛНИТЬ ФОРМУ "ЗАДАТЬ ВОПРОС"

ВЫ МОЖЕТЕ ЗАКАЗАТЬ У НАС КАТАЛОГ, ЗАПОЛНИВ ФОРМУ "ЗАКАЗАТЬ КАТАЛОГ", И МЫ ВЫШЛЕМ ЕГО ВАМ В КРАТЧАЙШИЕ СРОКИ.


ООО "Woodhouse" ©2026