Сиппа 92

Количество спален - 2

Кол. сан. узлов - 1
Сауна - есть
Количество этажей - 1 + чердак

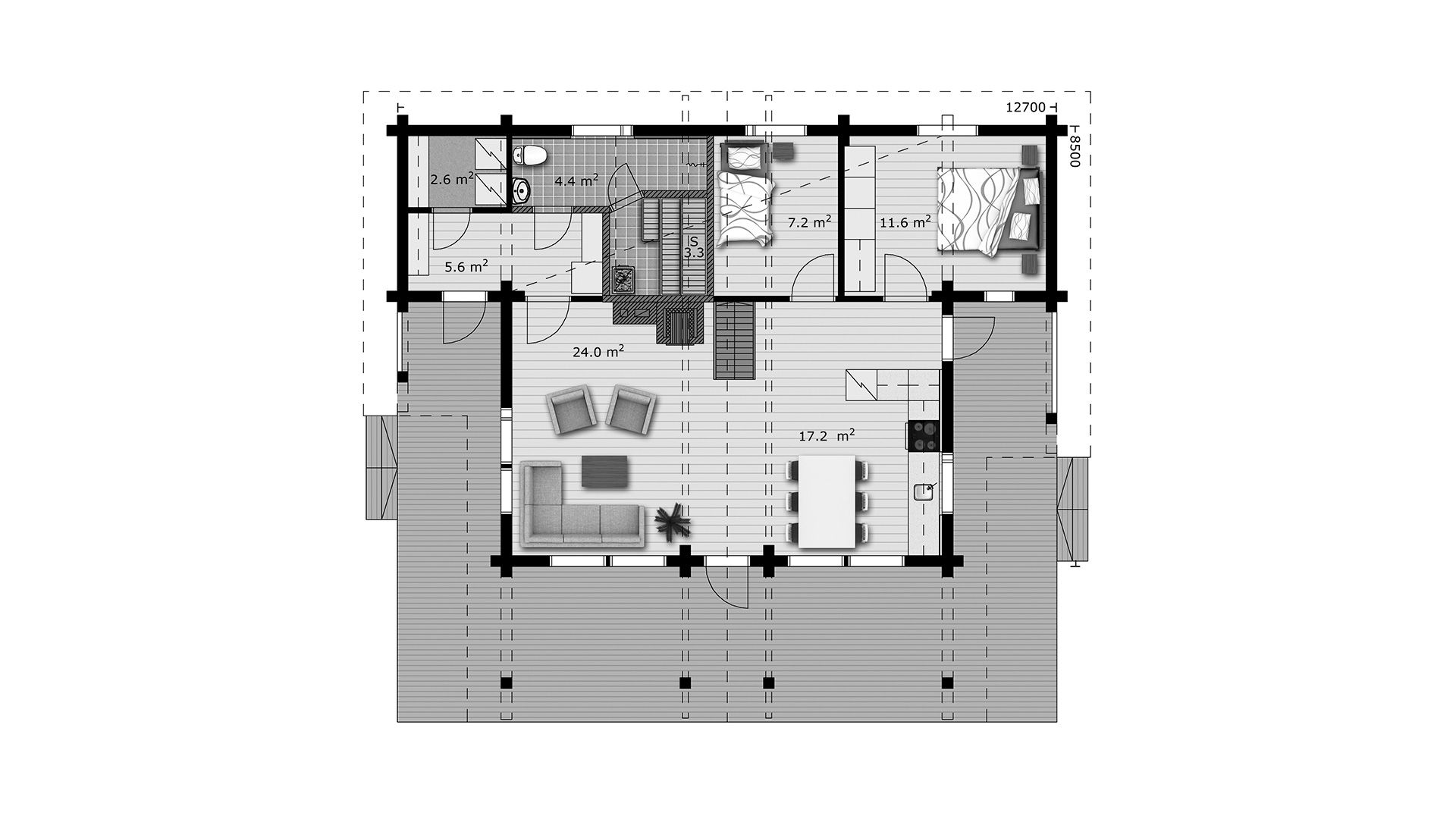
Деревянный дом Sippa - это красивый и комфортный дом для отпуска с интересной планировкой и хорошо распределенными комнатами с точки зрения функциональности. Жилая зона виллы и большие окна придают ей светлый вид. Из комнаты или сауны можно выйти на террасу. Террасы дома простираются вдоль трех фасадов, и они идеально подходят для обеда или чтобы просто провести время на свежем воздухе.

ЕСЛИ У ВАС ЕСТЬ ВОПРОСЫ, ВЫ МОЖЕТЕ ПОЗВОНИТЬ НАМ ПО ТЕЛ. +7 (812) 363-16-70
ИЛИ ЗАПОЛНИТЬ ФОРМУ "ЗАДАТЬ ВОПРОС"

ВЫ МОЖЕТЕ ЗАКАЗАТЬ У НАС КАТАЛОГ, ЗАПОЛНИВ ФОРМУ "ЗАКАЗАТЬ КАТАЛОГ", И МЫ ВЫШЛЕМ ЕГО ВАМ В КРАТЧАЙШИЕ СРОКИ.


ООО "Woodhouse" ©2026