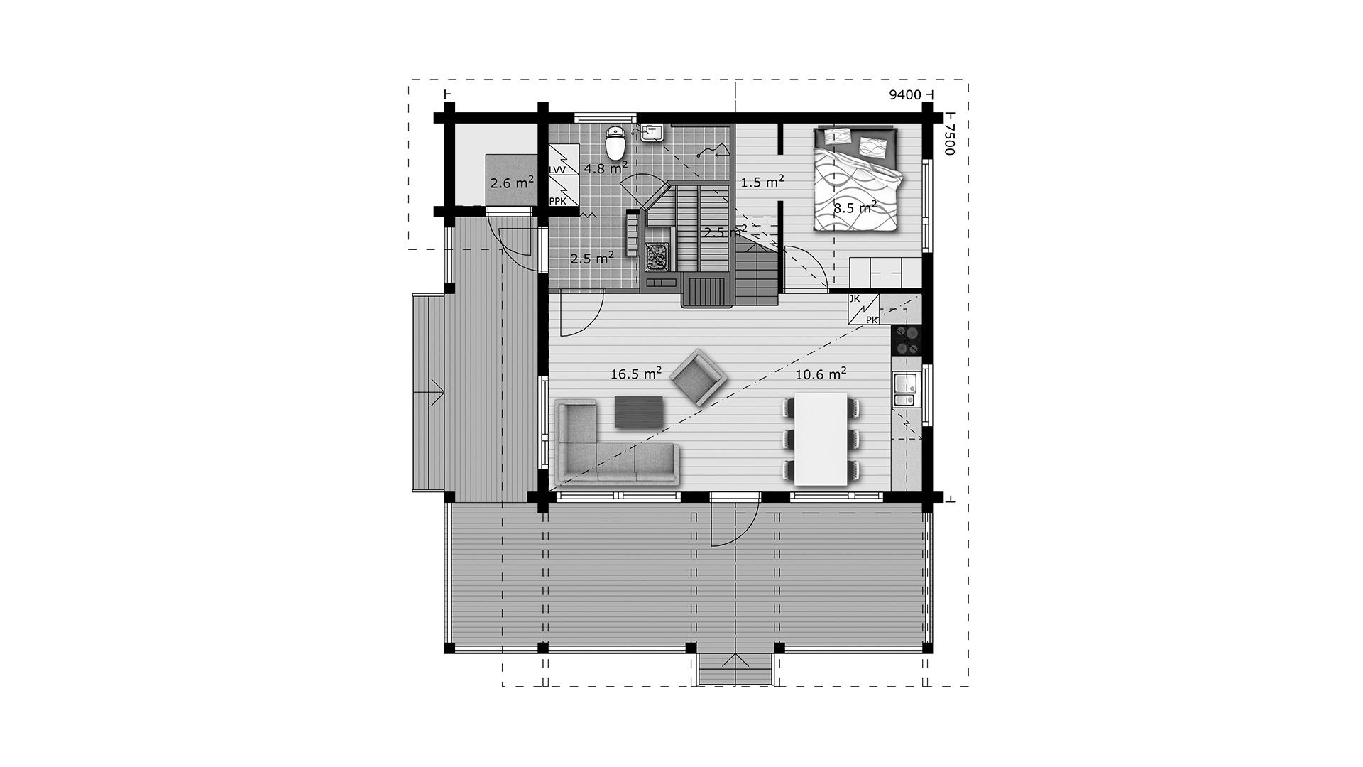
Сойлу 61

Количество спален - 1

Кол. сан. узлов - 1
Сауна - есть
Количество этажей - 1 + чердак

Деревянный дом Soilu - это современный дом для отдыха, который впишется в любой ландшафт. Кухня и гостиная виллы образуют просторную и высокую площадь, в которую проникает естественный свет из больших окон, расположенных от пола до потолка.

ЕСЛИ У ВАС ЕСТЬ ВОПРОСЫ, ВЫ МОЖЕТЕ ПОЗВОНИТЬ НАМ ПО ТЕЛ. +7 (812) 363-16-70
ИЛИ ЗАПОЛНИТЬ ФОРМУ "ЗАДАТЬ ВОПРОС"

ВЫ МОЖЕТЕ ЗАКАЗАТЬ У НАС КАТАЛОГ, ЗАПОЛНИВ ФОРМУ "ЗАКАЗАТЬ КАТАЛОГ", И МЫ ВЫШЛЕМ ЕГО ВАМ В КРАТЧАЙШИЕ СРОКИ.


ООО "Woodhouse" ©2026