Хунтала 184

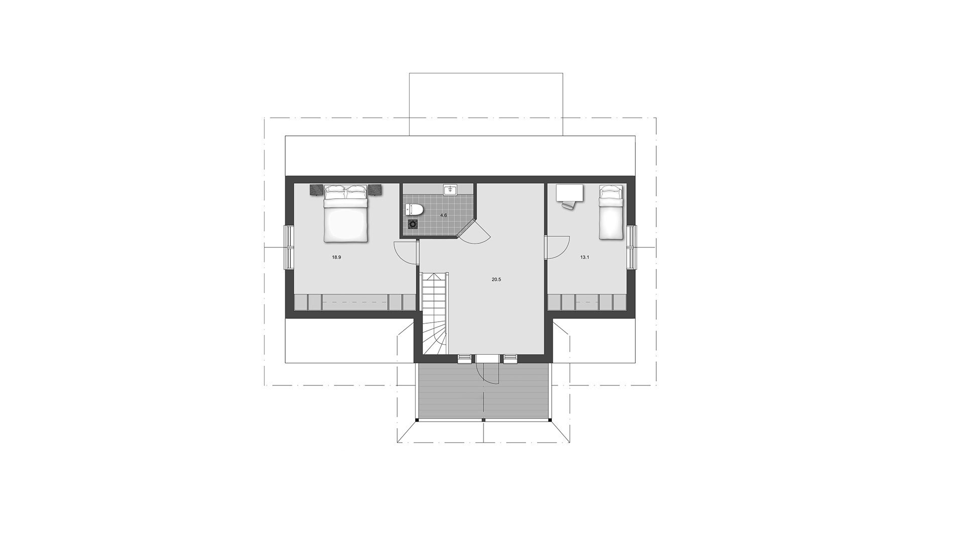
Количество спален - 4

Кол. сан. узлов -2
Сауна - есть
Количество этажей - 2

В дом можно попасть через традиционное крыльцо. Сердцем компактного нижнего этажа является просторный вестибюль. В дополнение к просторным спальням, верхний этаж дома состоит из гостиной зоны, а также крытого балкона.

ЕСЛИ У ВАС ЕСТЬ ВОПРОСЫ, ВЫ МОЖЕТЕ ПОЗВОНИТЬ НАМ ПО ТЕЛ. +7 (812) 363-16-70
ИЛИ ЗАПОЛНИТЬ ФОРМУ "ЗАДАТЬ ВОПРОС"

ВЫ МОЖЕТЕ ЗАКАЗАТЬ У НАС КАТАЛОГ, ЗАПОЛНИВ ФОРМУ "ЗАКАЗАТЬ КАТАЛОГ", И МЫ ВЫШЛЕМ ЕГО ВАМ В КРАТЧАЙШИЕ СРОКИ.


ООО "Woodhouse" ©2026