Кирьола 148

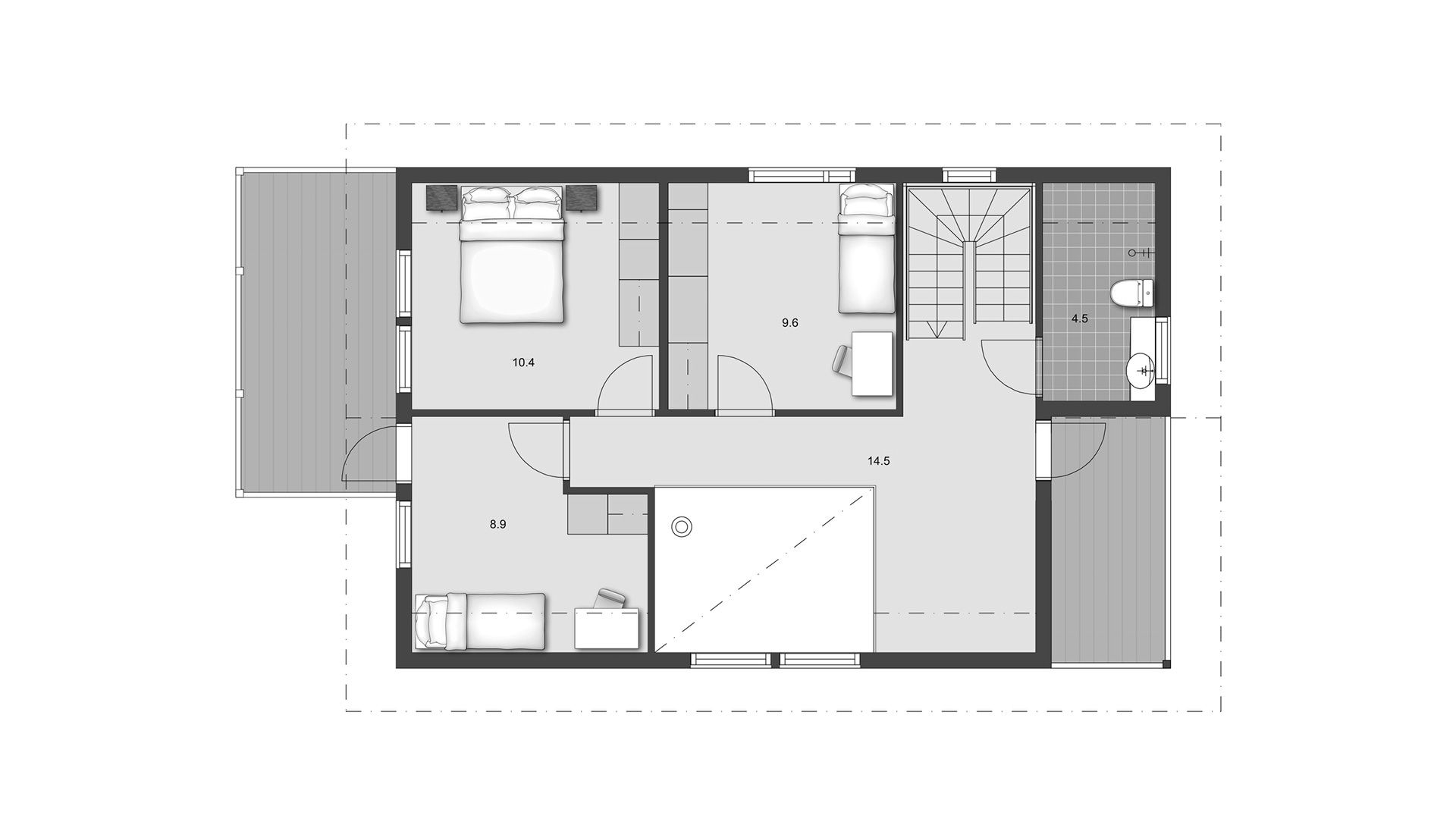
Количество спален - 4

Кол. сан. узлов - 2
Сауна - есть
Количество этажей - 2

Это современный городской дом, который подходит даже для небольшого участка. Данный проект был фаворитом среди посетителей rakentaja.fi.  Опрос проводился в 2019 году и занял второе место.

ЕСЛИ У ВАС ЕСТЬ ВОПРОСЫ, ВЫ МОЖЕТЕ ПОЗВОНИТЬ НАМ ПО ТЕЛ. +7 (812) 363-16-70
ИЛИ ЗАПОЛНИТЬ ФОРМУ "ЗАДАТЬ ВОПРОС"

ВЫ МОЖЕТЕ ЗАКАЗАТЬ У НАС КАТАЛОГ, ЗАПОЛНИВ ФОРМУ "ЗАКАЗАТЬ КАТАЛОГ", И МЫ ВЫШЛЕМ ЕГО ВАМ В КРАТЧАЙШИЕ СРОКИ.


ООО "Woodhouse" ©2026