Количество спален - 3

Кол. сан. узлов - 1
Сауна - есть
Количество этажей - 1

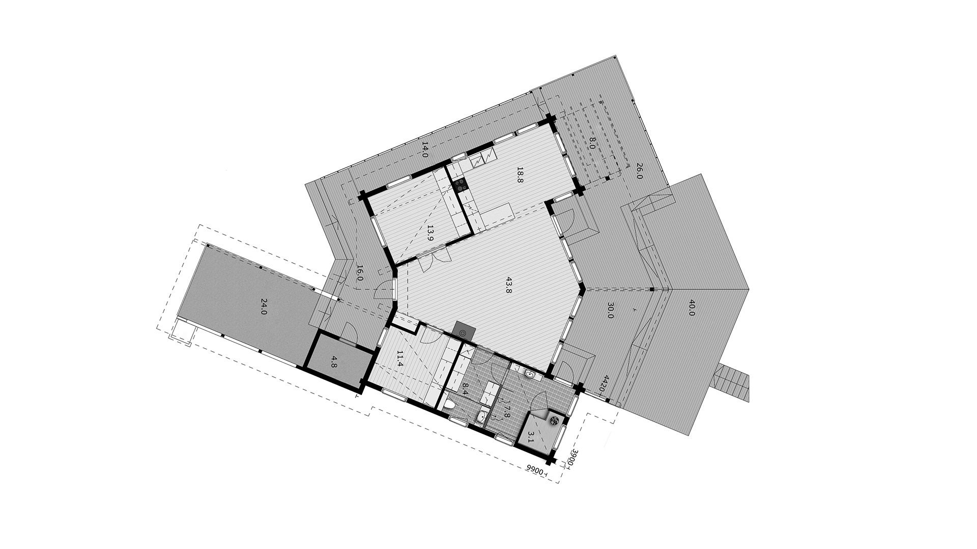
Площадь соответствуют стандартному проекту, но форма здания далека от оригинала. Открытая планировка гостиной Nuuna очаровали многих. Эта версия, оснащенная двумя спальнями, навесом для автомобиля и зимним садом на передней террасе, была признана победителем ярмарки домов отдыха в Калайоки в 2014 году.

ЕСЛИ У ВАС ЕСТЬ ВОПРОСЫ, ВЫ МОЖЕТЕ ПОЗВОНИТЬ НАМ ПО ТЕЛ. +7 (812) 363-16-70
ИЛИ ЗАПОЛНИТЬ ФОРМУ "ЗАДАТЬ ВОПРОС"

ВЫ МОЖЕТЕ ЗАКАЗАТЬ У НАС КАТАЛОГ, ЗАПОЛНИВ ФОРМУ "ЗАКАЗАТЬ КАТАЛОГ", И МЫ ВЫШЛЕМ ЕГО ВАМ В КРАТЧАЙШИЕ СРОКИ.


ООО "Woodhouse" ©2026