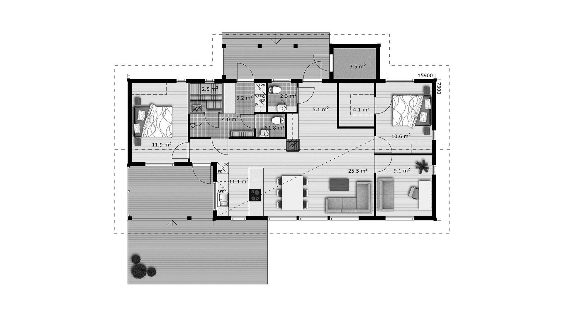
Оуланка 109 T

Количество спален - 3

Кол. сан. узлов - 2
Сауна - есть
Количество этажей - 1

Отдельно стоящий дом с четкой планировкой, дает возможность легко адаптироваться в нем. Окна гостиной, которые доходят почти до пола, приближают окружающую природу. Гости сауны по достоинству оценят близость террасы, где они могут освежиться. В то же время на террасе достаточно места для общей трапезы и барбекю.

ЕСЛИ У ВАС ЕСТЬ ВОПРОСЫ, ВЫ МОЖЕТЕ ПОЗВОНИТЬ НАМ ПО ТЕЛ. +7 (812) 363-16-70
ИЛИ ЗАПОЛНИТЬ ФОРМУ "ЗАДАТЬ ВОПРОС"

ВЫ МОЖЕТЕ ЗАКАЗАТЬ У НАС КАТАЛОГ, ЗАПОЛНИВ ФОРМУ "ЗАКАЗАТЬ КАТАЛОГ", И МЫ ВЫШЛЕМ ЕГО ВАМ В КРАТЧАЙШИЕ СРОКИ.


ООО "Woodhouse" ©2026