Тел.:+7 (812) 363-16-70Тел.: 8 (800) 333-26-10
+7 (812) 363-16-70 8 (800) 333-26-10
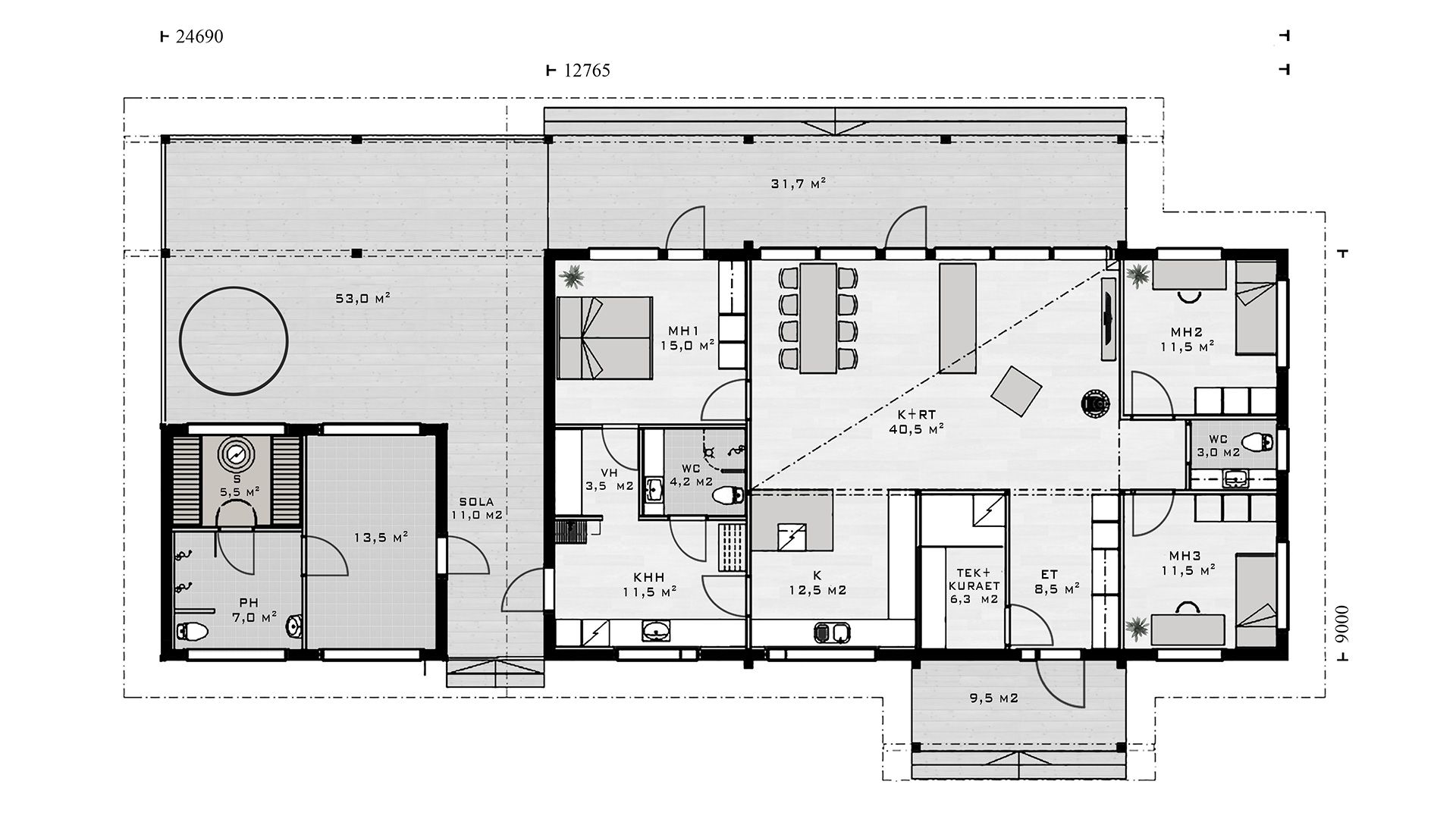
Количество спален - 3
Все началось с идеи куба. У куба было множество стеклянных поверхностей. Внутри куба гостиная, кухня и столовая находятся в одном и том же открытом пространстве. В результате, появился бревенчатый дом уникального вида.
ЕСЛИ У ВАС ЕСТЬ ВОПРОСЫ, ВЫ МОЖЕТЕ ПОЗВОНИТЬ НАМ ПО ТЕЛ. +7 (812) 363-16-70 ИЛИ ЗАПОЛНИТЬ ФОРМУ "ЗАДАТЬ ВОПРОС"
ООО "Woodhouse" ©2021
Создание сайтов