Сойдинниеми 100

Количество спален - 2

Кол. сан. узлов - 1
Сауна - есть
Количество этажей - 2

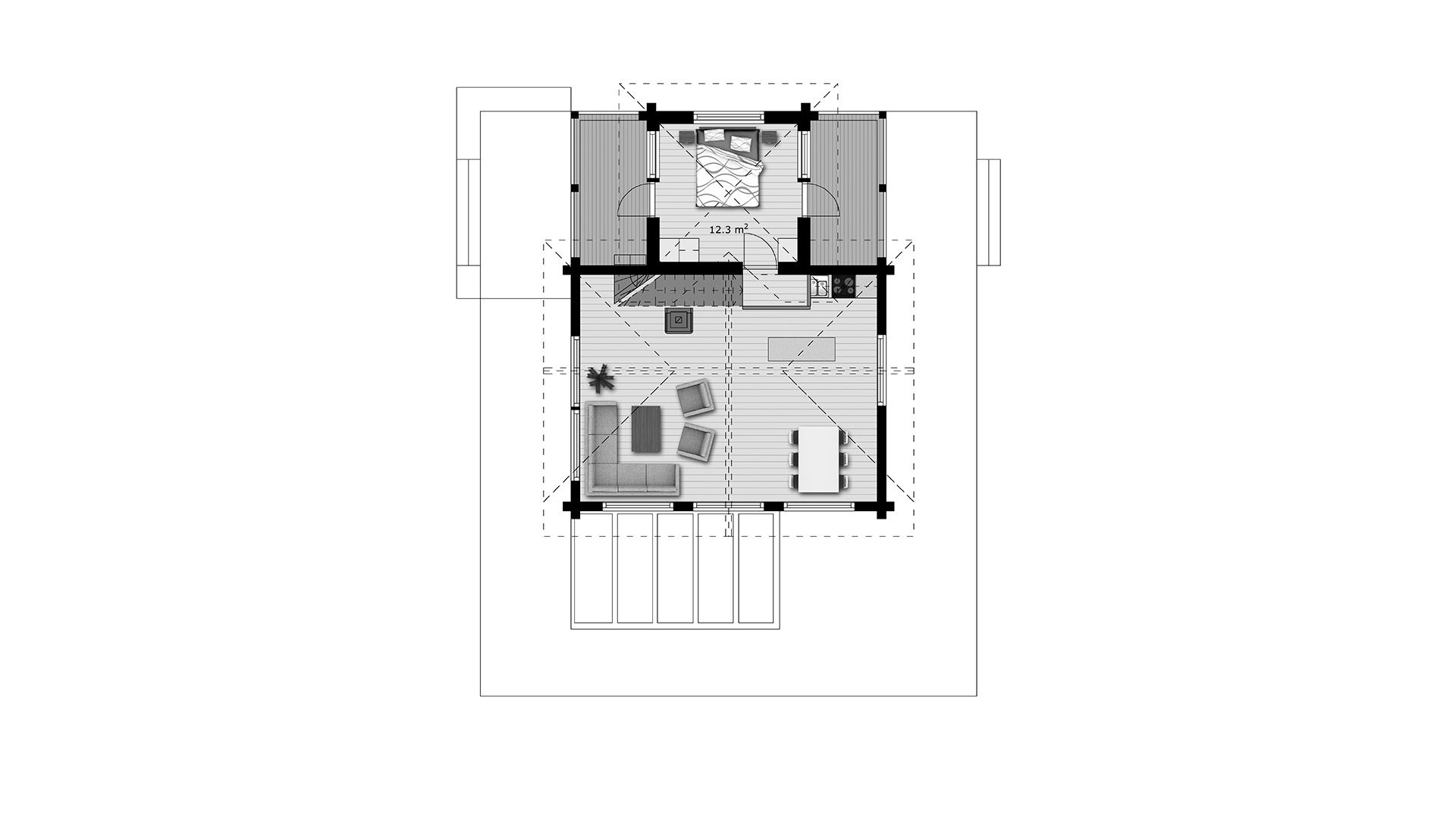
Помещения не разделены на отдельные комнаты. Вместо этого большая часть первого этажа представляет собой одну общую зону. Это приводит к чрезвычайно просторной и светлой гостиной и обеденной зоне с высоким потолком. Уют и комфорт дома усиливаются спальней на верхнем этаже, которая имеет два отдельных балкона для наблюдения за окружающей природой.

ЕСЛИ У ВАС ЕСТЬ ВОПРОСЫ, ВЫ МОЖЕТЕ ПОЗВОНИТЬ НАМ ПО ТЕЛ. +7 (812) 363-16-70
ИЛИ ЗАПОЛНИТЬ ФОРМУ "ЗАДАТЬ ВОПРОС"

ВЫ МОЖЕТЕ ЗАКАЗАТЬ У НАС КАТАЛОГ, ЗАПОЛНИВ ФОРМУ "ЗАКАЗАТЬ КАТАЛОГ", И МЫ ВЫШЛЕМ ЕГО ВАМ В КРАТЧАЙШИЕ СРОКИ.


ООО "Woodhouse" ©2026