Количество спален - 4

Кол. сан. узлов - 4
Сауна - есть
Количество этажей - 2

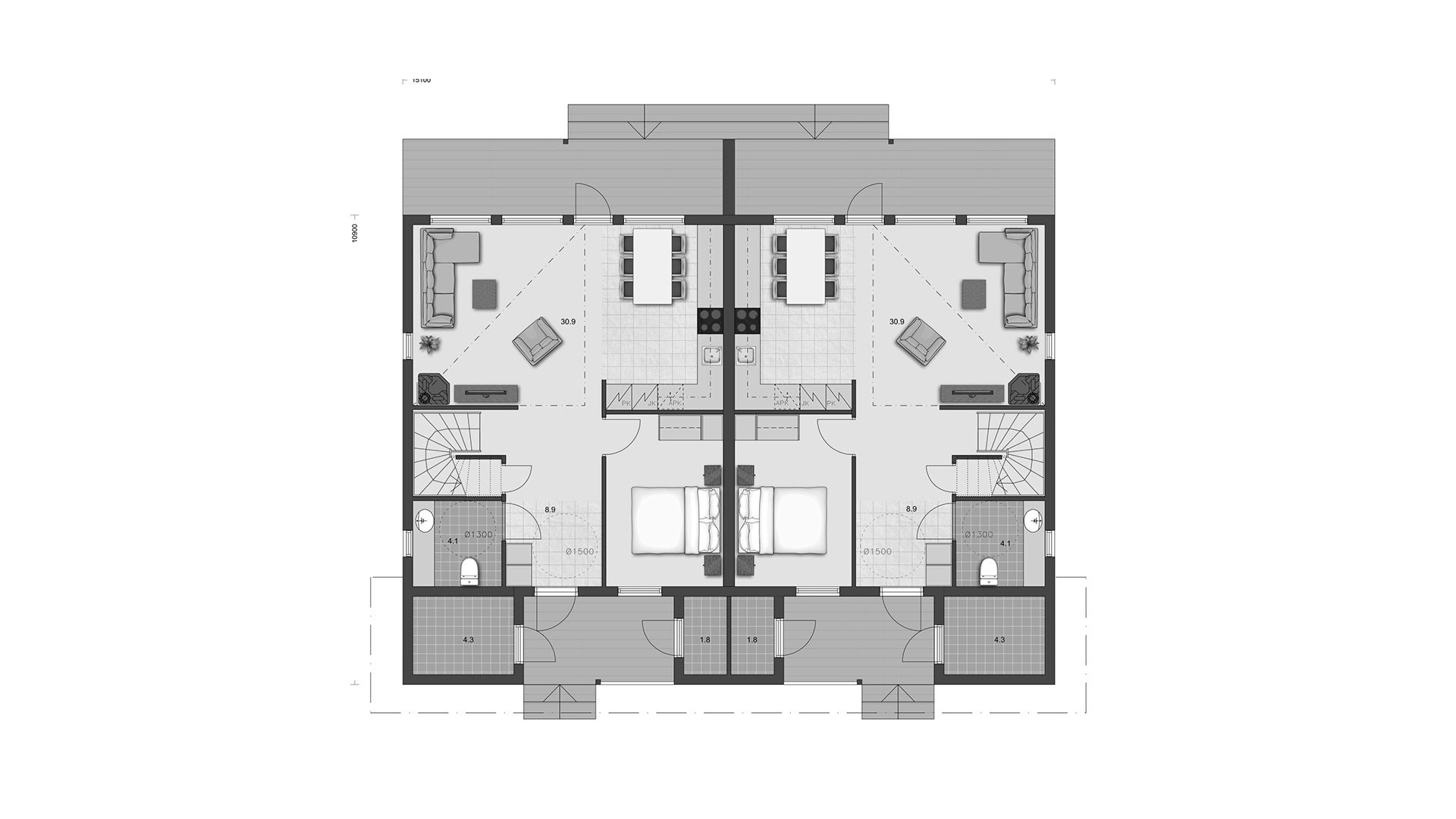
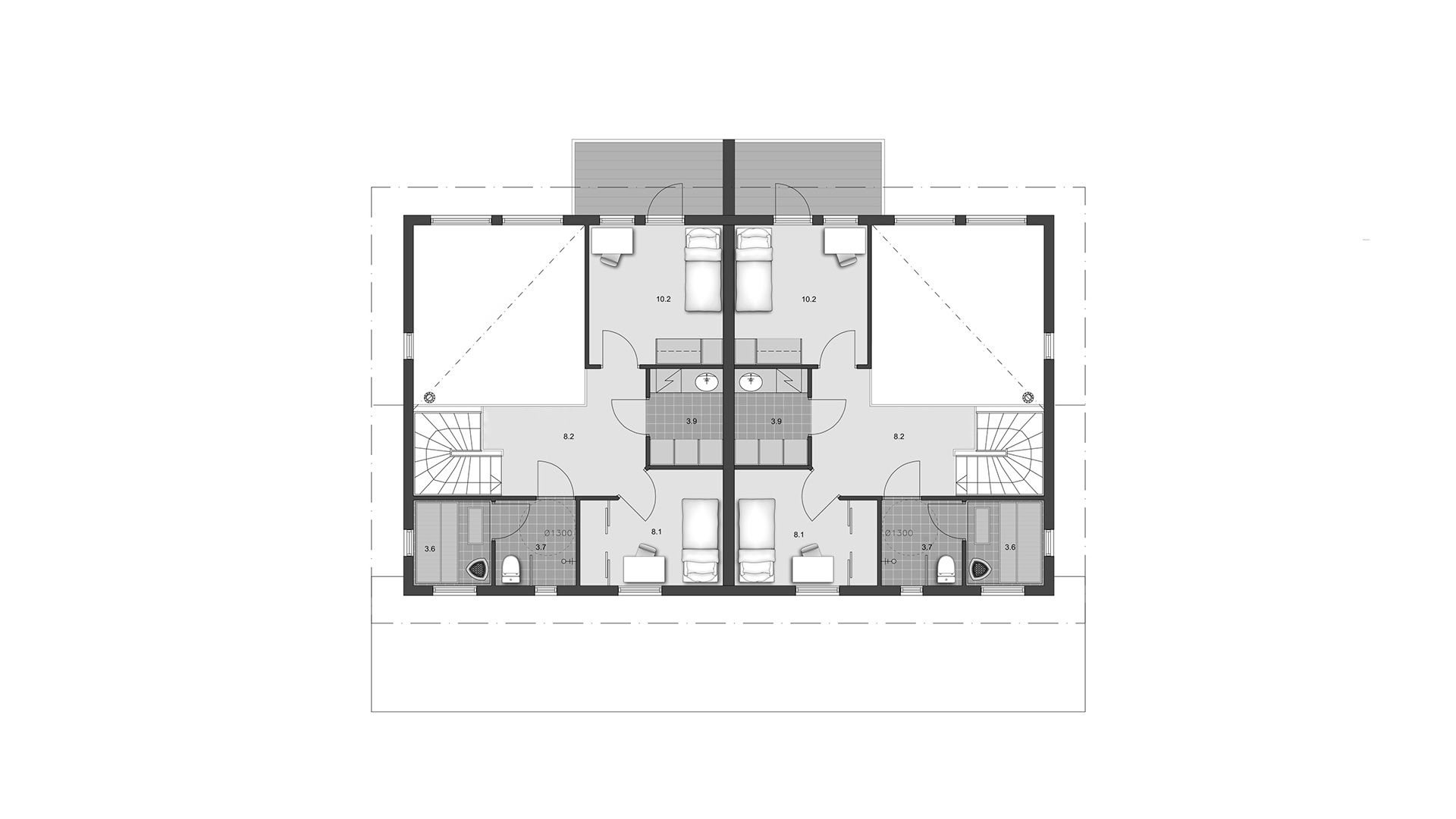
Дом для двух семей предоставляет жилые пространства на двух этажах таким образом, чтобы ванная комната и сауна были размещены наверху. Просторность нижнего этажа и яркость верхнего еще больше увеличиваются благодаря потолку гостиной, который открывается полностью вверх.

ЕСЛИ У ВАС ЕСТЬ ВОПРОСЫ, ВЫ МОЖЕТЕ ПОЗВОНИТЬ НАМ ПО ТЕЛ. +7 (812) 363-16-70
ИЛИ ЗАПОЛНИТЬ ФОРМУ "ЗАДАТЬ ВОПРОС"

ВЫ МОЖЕТЕ ЗАКАЗАТЬ У НАС КАТАЛОГ, ЗАПОЛНИВ ФОРМУ "ЗАКАЗАТЬ КАТАЛОГ", И МЫ ВЫШЛЕМ ЕГО ВАМ В КРАТЧАЙШИЕ СРОКИ.


ООО "Woodhouse" ©2026